Evoke Living Homes is incredibly proud to share that ELH306 has been awarded HIA Modular Home of the Year – Mid West.
Built in Northam, delivered to York, and unlike anything else in the Wheatbelt, this two-storey modular home with a custom-built control tower was crafted for clients in the aviation industry. It’s equal parts workspace and sanctuary, proving once again that Evoke Living Homes can make the extraordinary possible.

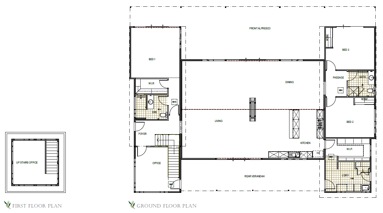
The Two-Storey Modular Home That Changed Everything
At first glance, ELH306 stands apart, but the story behind it takes modular design to new heights.
The ground floor draws inspiration from our Four Winds and Melaleuca designs, creating a warm, functional living space that feels instantly like home. Upstairs, the control tower takes centre stage, a purpose-built office overlooking the property, with matching offices below for a true his and hers workspace.
You won’t find another home like this anywhere - a testament to Evoke’s belief that every home should reflect the people who live in it.


Turning the Impossible Into Reality
For Shayne, our Senior Sales and Design Consultant, ELH306 was more than a project, it was a defining moment. From day one, he saw potential where others saw challenge and worked tirelessly to make the impossible possible.
“From the first conversation, I knew this home was going to be something special,” says Shayne. “The vision was big, a two-storey modular home with a control tower, built for a family who lives and breathes aviation. It pushed every boundary, but we never backed down. Seeing it all come together and knowing what it meant to them was unreal.”
When the win was announced, Shayne could barely contain his excitement.
“What a feeling,” he recalls. “I was anxiously waiting for the announcement, and when they called ELH306, I don’t think I even made it off the stage before calling the clients to tell them - beyond proud!”


Engineering Excellence Meets Heartfelt Design
For Lauren, our Designer, this home was a chance to blend passion, precision, and purpose.
“I was involved from the very beginning,” she says. “After Shayne’s first meeting, I actually went to the clients’ home to go over their drawings, which I never usually do! I designed and drafted everything myself. It was personal right from the start.”
This build pushed modular design to its limits, from its double-storey structure to the double-sided fireplace that became both a centrepiece and a structural backbone.
“The fireplace was just as epic as the tower,” Lauren explains. “It supported a 12-metre span while still splitting for transport, a huge design and engineering feat that paid off beautifully.”
“Visiting the site after completion and seeing the view of Mt Brown exactly as the clients envisioned, that was such a full-circle moment.”

From Dream to Award-Winning Reality
For the Prices, building ELH306 wasn’t just about creating a home; it was about crafting a space that reflected who they are, both personally and professionally. From their very first meeting, it was clear that their vision was something truly special.
“What first drew us to Evoke Living Homes was their genuine approach. From the very start, they made the whole process feel exciting. We could tell they weren’t just building houses — they were creating homes that felt modern, clever, and full of heart,” they shared. “The team really listened to what we wanted and helped turn our passion for aviation into something even better than we imagined — building a home that truly feels like ‘us’. It’s a space we can see ourselves enjoying for many years to come.”
Like any ambitious build, the journey wasn’t without its challenges, but the clients never felt alone.
“We knew building a home would come with its challenges, and of course, there were moments along the way where things didn’t go exactly to plan. But every time, Evoke was there with solutions, support, and reassurance.”
That trust and collaboration made the finished home even more meaningful.
“When the build was complete, it was everything we’d dreamed of — a space that reflects us, built with quality and care. We already felt so proud, but then came the news that our home had been awarded the HIA Modular Home of the Year – Mid West. That recognition was the cherry on top. We weren’t just happy for ourselves — we were overjoyed for the Evoke team who had put their heart and soul into making it happen.”
Looking back, they say the choice to build with Evoke was one of the best decisions they ever made.
“We knew building a home would be a big journey, and we wanted to work with a team who cared as much about the process as the end result. The brief from the very first meeting was ‘perfection’. Evoke felt like the perfect fit — and now, seeing what we’ve built together, we know it was.”
The Prices’ journey reminds us why we do what we do, to create homes that inspire pride, connection, and a sense of belonging. ELH306 will always stand as a symbol of what’s possible when a dream meets the right team to make it real.



0