Wondering what your
dream home will cost?
dream home will cost?
Click here to find your price

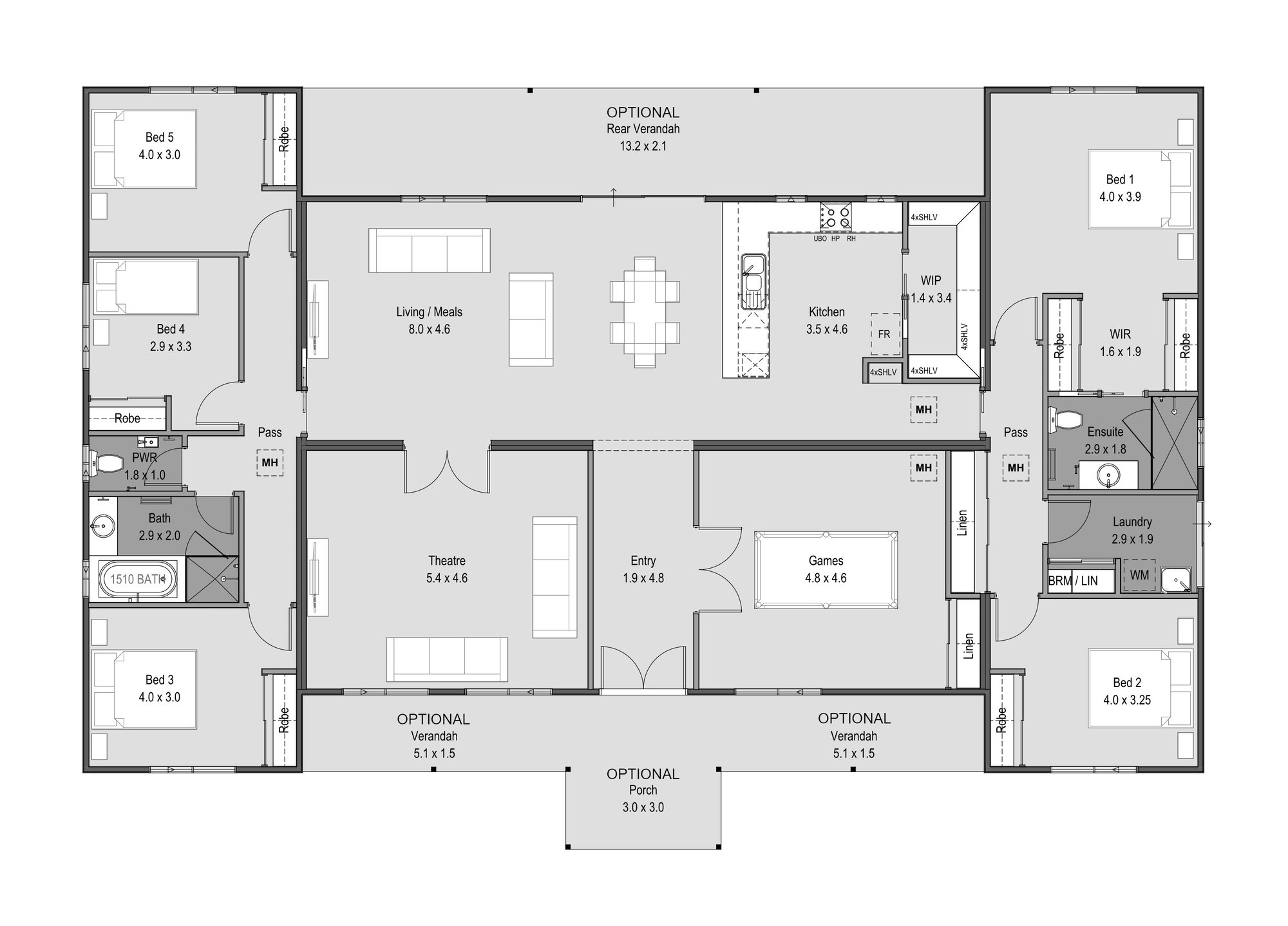
A perfect family home, the Four Winds is a superior entertainer providing a generous living area, kitchen and pantry as well as a powder room, balancing flawlessly; grandeur and practicality. Featuring a divided parent and children quarters, as well as a large theatre and games room, The Four Winds offers luxury and retreat.
4 + Study
2
237.60m2

Would you like to hear from our customer service team?